A dugattyúk és a dugattyús rudak hidraulikus tömítései egységes név a hidraulikus tömítések osztályához, de valójában sok különböző modellt osztottunk fel, és a különböző modellek jellemzői és fókusza szintén eltérőek lesznek. Professzionális gyártóként nagyon örömmel mutatjuk be Önt. Természetesen, ha más testreszabott igényei vannak, akkor kapcsolatba léphet velünk a mélyebb megértés érdekében.
Az UN-Type Seal egy szimmetrikus tömítés, amelyet kifejezetten dugattyúkon vagy dugattyúrudakon használnak, sétálógépekben, könnyű ipari gépekben, mezőgazdasági gépekben, darukban, autókban, erdészeti gépekben, bányászati gépekben stb.
Az UHS típusú tömítés szimmetrikus tömítés mind a lyukak, mind a tengelyek számára, kisebb keresztmetszettel, amelyet be lehet szerelni az integrált horonyba. A gyökérnél tartógyűrűre van szükség, ha 16 ~ 32mPa alatt használják.
Az RCBKY típusú tömítés szimmetrikus tömítés mind a lyukak, mind a tengelyek számára, jó dinamikus és statikus tömítési teljesítménygel. Elsősorban nagy átmérőjű tömítéshez használják, és az anyag nitrilgumi (NBR).
A BA-típusú tömítés szimmetrikus tömítés mind a lyukak, mind a tengelyek számára, elsősorban a dugattyú, dugattyús rudak, a gépek és a hidraulikus berendezések kovácsolásához használják a sétáló berendezések számára. Jellemzők:
1. Érzékeny a rezgésterhelésre és a nyomáscsúcsokra
2.
3. Jobb tömítés terhelés nélkül és alacsony hőmérsékleten
Durva munkakörülményekhez alkalmas
A VAD tömítés szimmetrikus tömítés mind a lyuk, mind a tengely számára. Ez az ajkak pecsétjének továbbfejlesztésének eredménye. A csillaggyűrű radiális erői szerepet játszik, és kompenzálja a tömítő ajak kopását. A rendszer nyomását a tömörítő ajakra továbbítják a tömörített és deformált csillaggyűrűn keresztül, így a magas és az alacsony nyomású tömítés kiváló. Elsősorban oszlopok, dugattyús rudak, kovácsolási gépek és hidraulikus berendezések oszlopok tömítésére használják. Az anyag: poliuretán anyag (PU) + nitril gumi (NBR), jellemzői:
1. Érzékeny a rezgésterhelésre és a nyomás csúcsára
2.
3. Jobb tömítés terhelés nélkül és alacsony hőmérsékleten
4. Kemény munkakörülményekhez alkalmas
5. Hosszú élet.
A Ki-A típusú tömítés egy szimmetrikus tömítés mind a lyukhoz, mind a tengelyhez, főként mérnöki gépekben, ipari járművekben, billenők teherautókban, mezőgazdasági gépekben, darukban, fröccsöntő gépekben, teleszkópos hengerekben, kormányzó hidraulikus hengerekben stb. Az anyag poliuretán (PU), jellemzői:
1. Kiváló dinamikus és statikus tömítési teljesítmény
2. Kompakt szerkezet, a horony talaja lehetővé teszi a nagyobb felületi érdességet
3. Tervezés az üreg korlátozott radiális dimenziójának tervezésére
Termékjellemzők és alkalmazások:
Anyagválasztás:
És
Szabványos anyag: Poliuretán anyag PU Egyéb opcionális anyagok: Nitril gumi R01, Fluorubber R02 (kérjük, olvassa el a cégünket)
Uhs
Szabványos anyag: Nitril gumi R01 Egyéb opcionális anyagok: Poliuretán anyag PU, Fluorubber R02
Ba
Poliuretán anyag PU + nitril gumi R01
Rendelési példa:
Rendelési példa: Lyuktengely univerzális pecsét UN50 × 65 × 10PU (DXDXH) + Anyagkód
Rendelési példa: Lyuk-tengely univerzális pecsét UHS50 × 60x6 R01 (DXD × H) + anyagkód
Rcbky
Ba
Rendelési példa: BA50 × 60 × 10 (d × d × h)
MI
-Ig-A
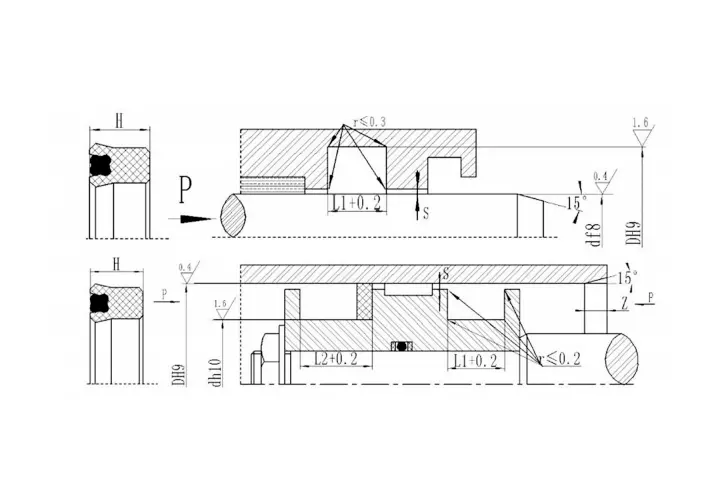
Műszaki adatok és dimenziók:
Uhs| Specifikációk és horonyméretek | ||||||||||||||
| Termékszám | d | D | H | L1 | L2 | T |
|
Termékszám | d | D | H | L1 | L2 | T |
| UHS-6*12*5 | 6 | 12 | 5 | 5.7 | 7.2 | 2 | UHS-30*40*6 | 30 | 40 | 6 | 7 | 9 | 3 | |
| UHS-11,2*19,2*5 | 11.2 | 19.2 | 5 | 5.7 | 7.2 | 2 | UHS-31.5*41,5*6 | 31.5 | 41.5 | 6 | 7 | 9 | 3 | |
| UHS-12.5*20,5*5 | 12.5 | 20.5 | 5 | 5.7 | 7.2 | 2 | UHS-32*42*6 | 32 | 42 | 6 | 7 | 9 | 3 | |
| UHS-14*22*5 | 14 | 22 | 5 | 5.7 | 7.2 | 2 | UHS-35*45*6 | 35 | 45 | 6 | 7 | 9 | 3 | |
| UHS-15*23*5 | 15 | 23 | 5 | 5.7 | 7.2 | 2 | UHS-35*45*7 | 35 | 45 | 7 | 8 | 10 | 3 | |
| UHS-16*24*5 | 16 | 24 | 5 | 5.7 | 7.2 | 2 | UHS-35.5*45*6 | 35.5 | 45 | 6 | 7 | 9 | 3 | |
| UHS-18*26*5 | 18 | 26 | 5 | 5.7 | 7.2 | 2 | UHS-38*48*6 | 38 | 48 | 6 | 7 | 9 | 3 | |
| UHS-20*28*5 | 20 | 28 | 5 | 5.7 | 7.2 | 2 | UHS-40*50*6 | 40 | 50 | 6 | 7 | 9 | 3 | |
| UHS-22.4*30*5 | 22.4 | 30 | 5 | 5.7 | 7.2 | 2 | UHS-45*55*6 | 45 | 55 | 6 | 7 | 9 | 3 | |
| UHS-23.5*31,5*5 | 23.5 | 31.5 | 5 | 5.7 | 7.2 | 2 | UHS-45*56*7 | 45 | 56 | 7 | 8 | 10 | 3 | |
| UHS-25*33*5 | 25 | 33 | 5 | 5.7 | 7.2 | 2 | UHS-47*57*6 | 47 | 57 | 6 | 7 | 9 | 3 | |
| UHS-27*35*5 | 27 | 35 | 5 | 5.7 | 7.2 | 2 |
|
UHS-50*60*6 | 50 | 60 | 6 | 7 | 9 | 3 |
| UHS-28*35.5*5 | 28 | 35.5 | 5 | 5.7 | 7.2 | 2 |
|
UHS-53*63*6 | 53 | 63 | 6 | 7 | 9 | 3 |
| Szabványos méretű táblázat rendelési példa: RCBKY 800 × 770 × 18 (d × d × h) | |||||||
| Termékszám | D | d | H | TÓL | L1 | L2 | Zmin |
| RCBKY250*225*16 | 250 | 225 | 16 | 247 | 18 | 21.5 | 10 |
| Rcbky255*230*16 | 255 | 230 | 16 | 252 | 18 | 21.5 | 10 |
| Rcbky265*240*16 | 265 | 240 | 16 | 262 | 18 | 21.5 | 10 |
| Rcbky275*250*16 | 275 | 250 | 16 | 272 | 18 | 21.5 | 10 |
| Rcbky280*255*16 | 280 | 255 | 16 | 277 | 18 | 21.5 | 10 |
| Rcbky300*275*16 | 300 | 275 | 16 | 297 | 18 | 21.5 | 10 |
| RCBKY305*280*16 | 305 | 280 | 16 | 302 | 18 | 21.5 | 10 |
| Rcbky320*295*16 | 320 | 295 | 16 | 317 | 18 | 21.5 | 10 |
| RCBKY325*300*16 | 325 | 300 | 16 | 322 | 18 | 21.5 | 10 |
| Rcbky340*315*16 | 340 | 315 | 16 | 337 | 18 | 21.5 | 10 |
| Rcbky345*320*16 | 345 | 320 | 16 | 342 | 18 | 21.5 | 10 |
| RCBKY350*325*16 | 350 | 325 | 16 | 347 | 18 | 21.5 | 10 |
| RCBKY355*330*16 | 355 | 330 | 16 | 352 | 18 | 21.5 | 10 |
| Szabvány méretű táblázat | ||||||||||||||||||
| d | D | H | L1 |
|
d | D | H | L1 |
|
d | D | H | L1 |
|
d | D | H | L1 |
| 3 | 8.5 | 4 | 4.4 | 15 | 23 | 5.7 | 6.3 | 20 | 28 | 5.7 | 6.3 | 24 | 32 | 7 | 7.7 | |||
| 6 | 14 | 5.7 | 6.3 | 16 | 24 | 5.7 | 6.3 | 20 | 28 | 6.5 | 7.2 | 24 | 35 | 5.7 | 6.3 | |||
| 8 | 16 | 5.7 | 6.3 | 16 | 26 | 7.3 | 8 | 20 | 30 | 7.3 | 8 | 25 | 33 | 5.7 | 6.3 | |||
| 10 | 18 | 5.7 | 6.3 | 18 | 24 | 5 | 5.5 | 22 | 30 | 5.7 | 6.3 | 25 | 35 | 7 | 7.7 | |||
| 10 | 20 | 7.3 | 8 | 18 | 26 | 5.7 | 6.3 | 22 | 32 | 7.3 | 8 | 25 | 35 | 7.3 | 8 | |||
| 12 | 20 | 5.7 | 6.3 | 18 | 28 | 7.3 | 8 | 22 | 35 | 10 | 11 | 25 | 40 | 10 | 11 | |||
| 12 | 22 | 7.3 | 8 | 20 | 28 | 5.5 | 6 | 24 | 30 | 5 | 5.5 | 25 | 40 | 11 | 12.1 | |||
| Szabványos méretű táblázat rendelési példa: VAD 65 × 75 × 8 (d × d × h) | ||||||||||||||||||
| d | D | H | L1 |
|
d | D | H | L1 |
|
d | D | H | L1 |
|
d | D | H | L1 |
| 20 | 28 | 5 | 6 | 55 | 70 | 9 | 10 | 80 | 90 | 8 | 9 | 110 | 130 | 10 | 11 | |||
| 25 | 33 | 5 | 6 | 63 | 75 | 8.7 | 10 | 80 | 100 | 12 | 13 | 110 | 130 | 15 | 16 | |||
| 28 | 36 | 5 | 6 | 65 | 75 | 8 | 9 | 85 | 100 | 10 | 11 | 110 | 130 | 16 | 17 | |||
| 30 | 40 | 6 | 7 | 65 | 85 | 12 | 13 | 90 | 105 | 12 | 13 | 112 | 125 | 10 | 11 | |||
| 32 | 42 | 6 | 7 | 65 | 75 | 7 | 8 | 90 | 110 | 10 | 11 | 115 | 135 | 12 | 13 | |||
| 32 | 40 | 8 | 9 | 70 | 83 | 10 | 11 | 90 | 110 | 12 | 13 | 115 | 135 | 16 | 17 | |||
| 35 | 45 | 6 | 7 | 70 | 85 | 9 | 10 | 90 | 100 | 7 | 8 | 115 | 130 | 10 | 11 | |||
| 38 | 48 | 6 | 7 | 70 | 85 | 10 | 11 | 90 | 105 | 11.4 | 12 | 120 | 140 | 10 | 11 | |||
| 40 | 50 | 6 | 7 | 70 | 90 | 12 | 13 | 95 | 120 | 12 | 13 | 120 | 140 | 12 | 13 | |||
| 40 | 50 | 7.3 | 8 | 70 | 80 | 6 | 7 | 100 | 120 | 12 | 13 | 130 | 150 | 12 | 13 | |||
| 45 | 55 | 7 | 8 | 70 | 80 | 7 | 8 | 105 | 120 | 9 | 10 | 140 | 160 | 13 | 14 | |||
| 45a | 55 | 6 | 7 | 75 | 90 | 10 | 11 | 105 | 120 | 10 | 11 | 145 | 160 | 10 | 11 | |||
| 50 | 65 | 9 | 10 | 75 | 95 | 12 | 13 | 105 | 125 | 12 | 13 | 180 | 200 | 13 | 14 | |||
| 50 | 60 | 7.3 | 8 | 75 | 90 | 6 | 7 | 110 | 125 | 9 | 10 |
|
|
|
|
|||
| 55 | 65 | 9 | 10 | 80 | 90 | 11.4 | 12 | 110 | 125 | 10 | 11 |
|
|
|
|
|||
| Megjegyzés: A fordított tömítések nem korlátozzák a táblázat, és bármilyen méretben is szállítható. | ||||||||||||||||||
| Műszaki adatok megrendelése Példa: Ki-A 50 × 60 × 7 (d × d × h) | |||||||||||||||||||||||
| d | D | H | L1 |
|
d | D | H | L1 |
|
d | D | H | L1 |
|
d | D | H | L1 |
|
d | D | H | L1 |
| 10 | 18 | 5.5 | 6.3 | 24 | 32 | 6 | 7 | 40 | 48 | 6 | 7 | 60 | 70 | 7.5 | 8.5 | 85 | 93 | 6.5 | 7.5 | ||||
| 12 | 20 | 5.5 | 6.3 | 25 | 33 | 6 | 7 | 40 | 48 | 8 | 9 | 63 | 71 | 8 | 9 | 85 | 94 | 15 | 16 | ||||
| 14 | 22 | 5.5 | 6.3 | 25 | 33 | 8 | 9 | 42 | 50 | 6 | 7 | 65 | 73 | 8 | 9 | 85 | 97 | 9 | 10 | ||||
| 16 | 24 | 6 | 7 | 28 | 36 | 6 | 7 | 45 | 53 | 8 | 9 | 65 | 73 | 11.5 | 12.5 | 90 | 98 | 8 | 9 | ||||
| 18 | 25 | 5 | 5.8 | 28 | 36 | 8 | 9 | 45 | 55 | 7 | 8 | 65 | 75 | 12 | 13 | 90 | 102 | 9 | 10 | ||||
| 18 | 26 | 6 | 7 | 30 | 38 | 6 | 7 | 50 | 58 | 8 | 9 | 65 | 77 | 9 | 10 | 100 | 108 | 8 | 9 | ||||
| 20 | 26 | 5 | 5.8 | 30 | 38 | 8 | 9 | 50 | 60 | 7 | 8 | 70 | 78 | 8 | 9 | 105 | 113 | 6.5 | 7.5 | ||||
| 20 | 28 | 6 | 7 | 32 | 40 | 6 | 7 | 52 | 60 | 5.5 | 6.3 | 70 | 82 | 9 | 10 | 115 | 124 | 15 | 16 | ||||
| 22 | 28 | 4.5 | 5.3 | 32 | 40 | 8 | 9 | 55 | 63 | 8 | 9 | 75 | 83 | 8 | 9 | 118 | 126 | 13 | 14 | ||||
| 22 | 29 | 5 | 5.8 |
|
32 | 42 | 8 | 9 |
|
55 | 65 | 7.5 | 8.5 |
|
75 | 87 | 9 | 10 |
|
125 | 133 | 6.5 | 7.5 |
| 22 | 30 | 6 | 7 |
|
35 | 43 | 6 | 7 |
|
55 | 65 | 10 | 11 |
|
78 | 86 | 8 | 9 |
|
145 | 153 | 6.5 | 7.5 |
| 22 | 30 | 7 | 8 |
|
36 | 44 | 6 | 7 |
|
55 | 65 | 12 | 13 |
|
80 | 88 | 8 | 9 |
|
|
|
|
|
| 22 | 32 | 8 | 9 | 36 | 44 | 8 | 9 | 60 | 68 | 8 | 9 | 80 | 90 | 10 | 11 |
|
|
|
|
||||
| 24 | 30 | 8 | 9 | 38 | 45 | 6 | 7 | 60 | 68 | 13 | 14 | 80 | 92 | 9 | 10 |
|
|
|
|
||||







































Cím
No.1 Ruichen Road, Dongliuting Industrial Park, Chengyang District, Qingdao City, Shandong tartomány, Kína
Tel